Votre panier
Il n'y a plus d'articles dans votre panier
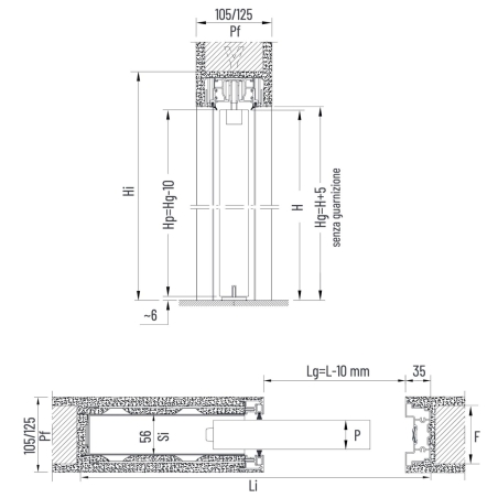
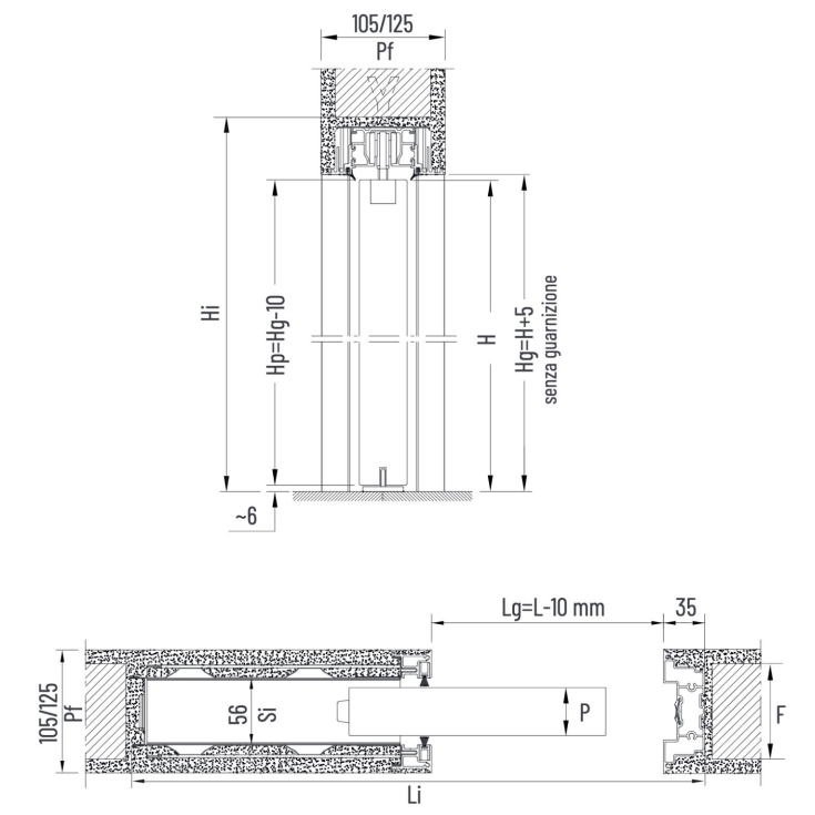
Techzero Scrigno 100mm contre-châssis affleurant en plaque de plâtre
Derniers articles en stock
